发布日期:2026-04-15 21:38 点击次数:147

地址:鸿业兴园
遐想施工单元:久栖遐想
面积:88㎡
造价:30万
格调:奶油风
说在前边:
本案是一户小配头,作念为婚房使用的他们,但愿本次装修不仅视觉上显大,更能通过从头诡计的相貌和动线退换,不错使空间愈加实用,营造出有序又情切的归家体验。

以浅白墙面为基底,焦糖色真皮三东谈主位沙发与米白色泰迪绒单东谈主椅,变成了体量对比。浅灰色圈绒地毯界定中枢休憩区。奶白色的球形吊灯与墙面壁灯,变成主辅照明。双层窗帘(纱帘 + 浅棕布帘)柔化当然光。白 + 暖棕 + 米白的低实足配色,营造温润柔柔的视觉基调,焦糖色皮革为空间注入温度。

壁灯开启后在墙面变成暖光晕染,弧形吊顶+灯带遐想弱化层高局限。沙发边角的明线细节突显利落感,南瓜抱枕的肌理感与皮革变成不同质感的对比。
暖光让白墙泛出米调,与焦糖色沙发、浅棕色窗帘变成更浓郁的暖调氛围,视觉更长入。
材质:壁灯的玻璃与金属材质、皮革的哑光质感、毛绒的蓬松感,在暖光下更显头绪。温馨静谧的夜间感,暖光弱化空间棱角,更显慵懒调节,相宜傍晚休憩。

守旧的木质音响边几为空间注入年代感,圆形出音孔与金属底座更显邃密无比。摆放的鸭梨台灯摆件与编织小物增添登第文明感。深棕实木与白面板变成经典撞色,鸭梨台灯摆件的奶黄色点亮局部,与沙发焦糖色变成暖调呼应。
米白 + 黑 + 暖棕的配色,黑胶唱片音响的玄色成为视觉锚点,绿植的绿色注入盼望。慵懒文艺的减弱感,相宜独处听音乐、阅读,是空间里的心情自留地。

头层牛皮沙发的玄虚肌理、泰迪绒的软糯触感、圈绒地毯的颗粒感、金属灯架的冷冽感,多种材质碰撞晋升头绪。当代检朴中带着守旧暖意,通透亮堂又不失包裹感,这才是浮松调节的平日居家氛围。

客餐联动的空间里,以浅白墙面与通铺的米白色地砖奠定通透基底。弧形门洞柔化空间领域,罢了客餐厨放大视觉的感受。焦糖色真皮沙发与浅灰圈绒地毯界定休憩区,大尺寸电视墙在视觉上拓展空间,守旧木质边柜与葫芦摆件点缀细节。

餐边柜表层玻璃门的收纳柜,搭配盛开式置物架,兼顾展示与收纳;实木的温润、玻璃的通透、金属的冷冽、布艺的柔嫩,传递出邃密无比又自在的质感。
餐吧层板灯带点亮展示区,暖光让木质纹理更显温润;拱形玻璃门柜内置灯光,晋升邃密无比感;客厅壁灯与主吊灯变成暖光氛围,弧形吊顶+灯带弱化层高局限。
暖光让白墙泛出米调与暖棕窗帘、焦糖色沙发变成更浓郁的暖调氛围,视觉更柔柔长入。通透明朗又不失邃密无比感,从入户到客厅的动线流畅,营造出有序又情切的归家体验。

餐区和客厅联动变成一体化空间,雪柜外移白色橱柜搭配深棕木台面,守旧开关面板点缀细节;镶嵌式电器与高柜收纳晋升整洁度,黑胶唱片机与绿植为恬逸区注入文艺感。
保捏举座色调连贯,餐边柜层板灯带点亮操作区,暖光让木色更显温润,交融更当然。温馨调节的灯光弱化空间领域,让用餐、休憩场景更具氛围感。

聚焦餐吧区域,卵形实木餐桌搭配带圆孔靠背的守旧餐椅,椅面辞别选定藏蓝与玄色布艺。实木的温润纹理、金属椅腿的利落感、布艺椅面的柔嫩亲肤,玻璃的通透,细节处彰显质感。
文艺守旧的邃密无比感,小体量餐吧成为空间视觉焦点,传递出主东谈主对生涯细节的根究与疼爱。

折叠餐桌张开变成实用就餐区,表层盛开格搭配灯带,用于展示杯具与摆件,兼顾实用与好意思不雅。不竭举座暖棕色调,加入原木色丰富视觉头绪,幸免单调。兼具实用性与氛围感的守旧餐吧,既欢快平日用餐需求,又成为空间中充满文艺气味的展示区。

玄关区遐想了镶嵌鞋柜和斜角衣帽间,让空间获得更合理的哄骗。守旧挂画文明且富余艺术气味的过渡空间,连结各个功能区,让举座布局更谐和长入。

走廊区域拱形门与墙面挂画变成艺术感,,纯白色墙面搭配胡桃木色柜体,色调圣洁干净,隆起空间质感。
大容量白色雪柜与镶嵌式烤箱布局紧凑实用,,台面上方盛开格与柜体组合,亚搏罢了收纳与展示。守旧袒护摆件晋起飞间温馨感。邃密无比实用且温馨调节的边缘,收纳与好意思不雅兼顾,传递出对生涯品性的追求。

将镶嵌式雪柜与烤箱罢了功能整合,表层盛开格兼具收纳与展示功能,守旧圆形插座面板点缀细节,右侧换鞋凳晋升入户便利性。实用整洁的当代检朴感,功能布局紧凑有序,传递出高效自在的生涯姿色。

玄色哑光入户门与白色墙面变成视觉对比,两侧定制高柜罢了收纳最大化。左侧换鞋凳兼顾好意思不雅与实用性,胡桃木盛开格与白色柜体变成材质呼应。千里稳大气的入户典礼感,极简线条与实用收纳聚合,营造出有序且邃密无比的归家体验。

右侧艺术挂画成为视觉焦点,左侧收纳柜与入户区格调呼应,轨谈灯提供无邪照明。实木门的温润、玻璃门的通透、挂画的艺术质感,材质搭配让空间更具头绪与艺术感。哄骗斜型转角的走廊作念过渡区,让动线流流通透,空间布局更能获得合理哄骗。

圣洁空间更显亮堂,变成参预卧室的奥秘过渡区。在柔柔的色泽下,传递出自在减弱的居住心情。

焦糖色真皮床头依靠自在,双层窗帘柔化当然光,黑胡桃木梳妆台与木质量板变成情切基调。白+暖棕+焦糖配色,不竭全屋暖调格调,木质元素与皮革材质让空间更具温度。温馨静谧的休憩空间,暖光与当然材质聚合,传递出慵懒减弱的睡觉氛围,是身心休憩的联想步地。

主卧床头区域,银色球形壁灯更显高等,胡桃木色小边柜搭配水晶球摆件,增添生涯意思意思与邃密无比感。真皮的哑光质感、金属的镜面反光、实木的温润纹理、布艺的柔嫩,细节处彰显生涯质感。

通顶白色衣柜搭配下置抽屉,兼顾挂衣与叠放收纳。皎皎白色柜体与暖棕木质量板变成对比,视觉清爽干净,与床头焦糖色变成暖调呼应。衣柜侧面预留胡桃木盛开格,四肢次净衣区,让储物空间更具温度与东谈主性化。

借用走廊墙面,掏出一个小储物空间,把头疼的管谈皆包进去了。即让走廊有了储物空间,又能保留管谈的查考口。

选定上白下木的橱柜遐想,胡桃木下柜与全屋木质元素呼应。整洁高效的烹调氛围,功能布局紧凑有序,充斥满满的烟火气。

狭长厨房选定单侧布局,米白色墙砖与地砖通铺到阳台,蔓延视觉纵深感,阳台管待当然光更显通透干净。亮堂通透的备餐氛围,当然光与圣洁线条聚合,让小空间也能自在高效。

以浅米色瓷砖为基底,智能马桶、壁挂式迷你洗衣机、带灯镜柜等智能建树晋升生涯便利性,圣洁干净又不失邃密无比感。

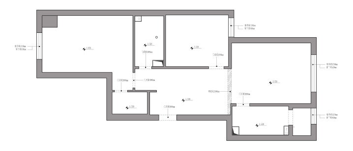
纠正前:
1.门厅只消少许薄鞋柜的空间,衰退外衣挂放的位置。
2.餐区收纳空间不及,用餐区又占用了好多通谈,放完餐桌后险些莫得空间举止。
3.储物空间演叨用,不大的衣柜在主卧,空间很小清寒实用性。
4.卫生间空间细长,动线不对理,收纳不够,莫得干湿分离功能。

纠正后:
1.玄关
玄关伏击的即是入户收纳,门厅需要科罚换鞋和挂衣区,储物间外移后,让实用率翻倍。
2. 餐厅
拆掉次卧薄墙,翻开了门厅和餐厅通谈的空间,加多双侧餐边柜储物的空间。雪柜外移后,加多厨房面积,让小空间不仅领有了电器柜,东谈主多聚餐还能同期容纳下六个东谈主。
3.储物间
蓝本的储物间在主卧里,只可放换季穿着,既占场地还演叨用。是以改换想路,缩短主卧空间将储物间外移。不仅能放换季衣物,还能放行李箱等杂务。把空间留给通谈,视觉上即广宽又实用。
4.卫生间
蓝本细长的空间作念了相貌退换亚博体育,横条拓宽里面动线后,领有了洗衣机、淋浴房和浴室柜独处的位置。
斗鱼体育app中国官网下载上一篇:亚搏app官方网站 井户田润娶小19岁嫩模 曾和安达祐实成亲3年分开
下一篇:没有了